Kirjeldus
BLOX moodulkaminad on saadaval nii konvektsioon-tüüpi kui salvestavana.
Konvektsioonküttega on teil soojus saadaval mõne hetkega ja saate ruumi kiiresti üles kütta. Külm õhk tõmmatakse alumiste ventilatsiooniavade kaudu sisse ja väljastatakse ülemiste ventilatsiooniavade kaudu tagasi tuppa.
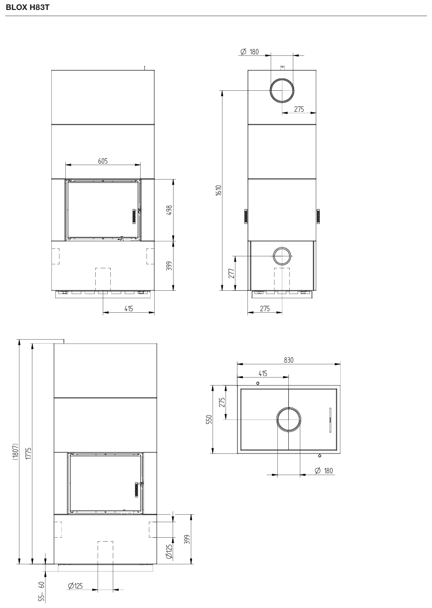
BLOX H83T konvektsioonkamin koosneb järgnevatest osadest:
- HAKA 60/50ST kaminasüdamik,
- kuuma õhu soojusvaheti,
- terasest suitsutoru koos suitsugaasi tõmbe regulaatoriga Ø180 mm(vertikaalne/horisontaalne) koos puhastusavaga,
- Betoonist väliskest reguleeritava raami ja soklikattega.
Antud hind on ühekordse klaasiga uksega. Võimalus valida käelisust, saab tellida ka kahekordse klaasiga.
Vaata värvivalikuid SIIT.






