Kirjeldus
BLOX moodulkaminad on saadaval nii konvektsioon-tüüpi kui salvestavana.
Akumulatsioon toimib suletud süsteemina, kus soojusenergia talletatakse järk-järgult salvestusmassile enne suitsu korstnassse laskmist. Energia kiirgub seejärel aegamisi tagasi tuppa, eraldades soojust mitu tundi pärast viimast puude lisamist. Sellele küttemeetodile on tüüpilised suuremad puidukogused pikema aja vältel.
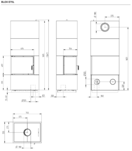
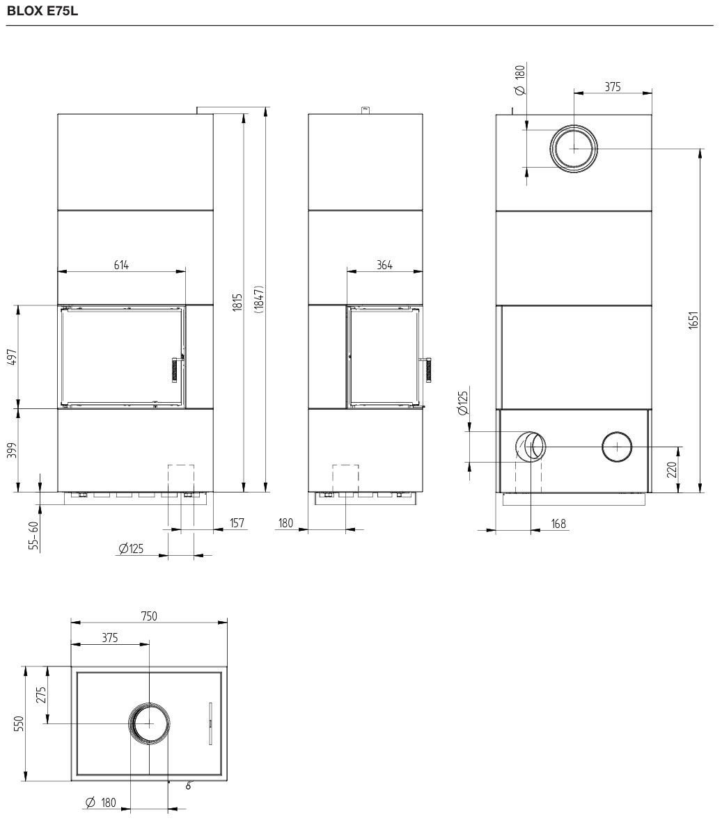
BLOX E75 salvestav kamin koosneb järgnevatest osadest:
- ECKA 60/35/50S kaminasüdamik,
- 3 salvestavat rõngast Ø345 mm,
- terasest suitsutoru koos suitsugaasi tõmbe regulaatoriga Ø180 mm(vertikaalne/horisontaalne) koos puhastusavaga,
- Betoonist väliskest reguleeritava raami ja soklikattega.
Antud hind on ühekordse kahest tükist klaasiga uksega. Saab tellida ka ühest tükist klaasiga või kahekordse klaasiga.
Vaata värvivalikuid SIIT.
Andmed
| Nominaalne võimsus (kW) |
– |
| Kasutegur (%) | >80 |
| Puidukogus (kg) | 7 (3,5+3,5) |
| Soojuskiirguse periood (h)* | 7 |
| Suitsugaaside massivoolukiirus (g/s) | 12 |
| Suitsugaaside temp. korstnaühenduses (°C) | 233 |
| Vajalik tõmberõhk (Pa) | 12 |
| Suitsutoru läbimõõt (mm) | 180 |
| Välised mõõtmed (mm) | 750 x 550 x 1870 |
| Kaal (kg) | 549 |
| * Aeg süttimisest kuni 25% saavutamiseni maksimaalsest keskmisest pinnatemperatuurist võrreldes toatemperatuuriga |







